項目名稱:杭州雙林產業園項目
項目面積:61000㎡
項目簡介:杭州雙林產業園項目位于杭州臨平經濟技術開發區,位于天荷路以南,距離地鐵9號線盡在咫尺;地鐵3號線二期臨平段也在規劃中,交通便利;項目整體建筑面積61000㎡,由我司設計、施工、總包集成的地源熱泵系統提供項目整體的制冷、采暖和生活熱水以及部分區域的地面采暖;
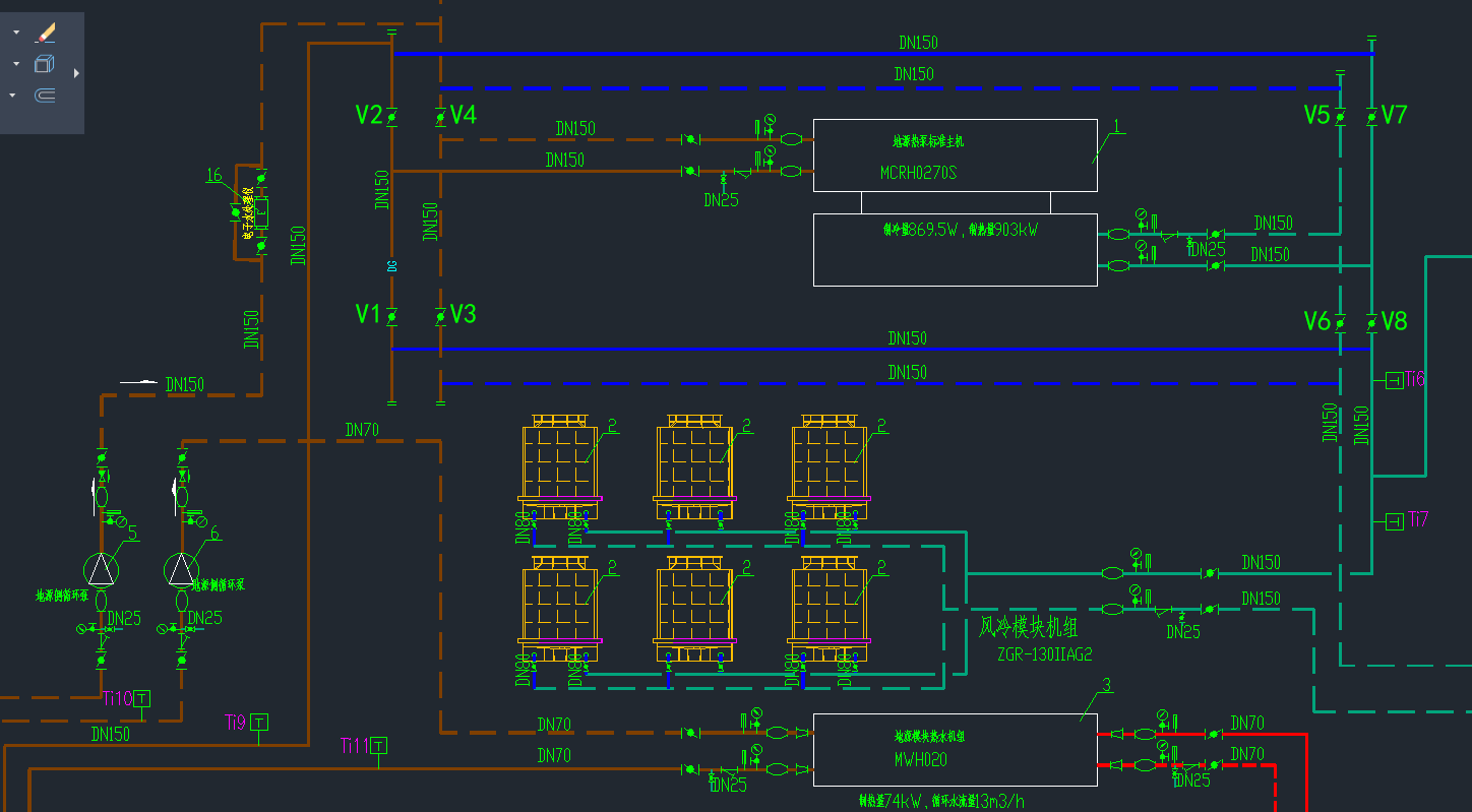
系統簡介:本次項目采用地源熱泵復合系統技術,辦公樓和綜合樓區域采用大型螺桿式地源熱泵機組配合風源熱泵模塊機組,為整個項目提供制冷、采暖和生活熱水;其中全熱回收式模塊機制備生活熱水。整個項目采用了二次系統設計,一次系統配置蓄能罐、二次系統采用了變頻技術。
系統組成:地源熱泵主機采用大型高溫螺桿機+風源熱泵模塊機+風機盤管+全熱回收式新風機+地板輻射采暖+全熱回收式生活熱水;
系統優勢:地源熱泵系統夏季空調出風柔和舒適、冬季供暖安靜高效;一年四季的生活熱水由地源熱泵系統提供后即方便又節能;整體舒適度效果高于傳統的制冷和采暖系統同時,費用又比傳統的制冷采暖系統要低30-50%;
地源熱泵系統優勢:
1、熱泵是提取自然界中的能量,效率高,無污染物排放,是當今最清潔、經濟的能源方式。
2、由于地能資源的溫度一年四季相對穩定,是極好的熱泵冷、熱源,這種環境特性使得地源熱泵系統比傳統空調系統運行效率要高40%,因此節能和節省運行費用40%左右。
3、地源熱泵系統可供暖、空調,還可供生活熱水,一機多用,一套系統可以替換原來的鍋爐加空調的兩套裝置或系統;可應用于賓館、購物商場、辦公樓、學校等建筑,更適合于別墅住宅的采暖、空調。
4、在同等條件下,采用地源熱泵系統的建筑物能夠減少維護費用。地源熱泵非常耐用,它的機械運動部件非常少,所有的部件不是埋在地下便是安裝在室內,從而避免了室外的惡劣氣候,因此地源熱泵是免維護空調,節省了維護費用,使用戶的投資在3年左右即可收回。
5、相比于傳統氟空調,水系統空調更適用于大型公建項目、住宅小區等體量的工程,其使用率越大越節能。其次,水系統采取多回路設計(多壓縮機)即使一個壓縮機回路出現問題,但整套空調系統仍可正常運行。

22年專注地(風)源熱泵精細化施工





掃一掃進入手機網站!